暮らしのリズムを整える、洗面台から考えるリノベーション事例5選|住まいのヒント

Housing Tips
暮らし再発見マガジン のくらし by ReBITA
住まいのヒント

暮らしのリズムを整える、
洗面台から考えるリノベーション事例5選

目 次
  1. 1洗面台を快適に整えるための5つのポイント
  2. 2洗面台にこだわったリノベーション事例
  3. 3心地よさと使い勝手のよさを両立させるために
  4. 4日々の時間を、少しだけ整える

顔を洗い、身支度をし、ときにはほっと一息つく。立ち寄るだけの場所のように見えて、洗面台は暮らしのリズムを整える大切な役割があります。近年では、脱衣室とは独立して、生活動線のなかにオープンスペースとして洗面台が配置される例も増えてきました。この記事では、実際のリノベーション事例を通じて、暮らしの起点となる洗面台をつくるための視点と工夫をご紹介します。

洗面台を快適に整えるための5つのポイント

洗面台は、間取りの一角にある設備でありながら、日々の暮らしとも深く関わる存在です。その使い心地や印象は、動線や配置、素材、収納といった細部の積み重ねによって形づくられています。1つひとつは小さな工夫でも、それが重なり合うことで空間のあり方は大きく変わるものです。ここからは、洗面室をリノベーションするうえで押さえておきたい5つのポイントを整理していきます。

・動線を意識することで、暮らしの流れがスムーズに

洗面台を住まいのどこに配置するかによって、洗面室として独立させるのか、オープンに設けるのかという選択肢が生まれます。その違いを考えるうえで欠かせないのが、住まい全体の動線です。洗面台を暮らしの動線のなかに設置することで、日々の動きがスムーズにつながります。玄関からLDKへ向かう途中や、寝室から出てすぐの位置にあると、手洗いや身支度も自然な流れのなかで行えます。脱衣室やキッチン、リビング、寝室など、役割の異なるエリアを行き来できる回遊型の動線を設けておけば、住まいのなかの人の流れはさらにスムーズになります。生活動線に意識を向けることが、家族みんなのペースに無理なくなじむ洗面室を実現するための第一歩です。

・脱衣室と分けることで、誰もが気兼ねなく使える場所に

使い勝手のよさを考えるなら、「脱衣室を分ける」という選択肢もあります。誰かが入浴していても気兼ねなく洗面台を使えることは、大きなメリットです。朝晩を問わず、家族がそれぞれのタイミングで身支度できるようになるので、暮らしの段取りがしやすくなります。来客時にも案内しやすく、プライベートな領域とパブリックな領域をゆるやかに分けられることも安心材料のひとつ。ライフスタイルにあわせて水回りの構成を考えることで、家族それぞれが自分のタイミングで使えるようになります。

・オープンエリアに配置することで、住まいに心地よいゆとりを

洗面は、必ずしも個室にある必要はありません。廊下やLDKの一角にオープンエリアとして設けることで、そこは単なる身支度の場所を超えて、住まいの「心地よいゆとり」にもなります。いつも目に入る場所だからこそ、自然と片付ける習慣が身につき、いつでも清々しい空間として保ちやすくもなるはずです。開放感と整った印象を両立させることで、住まい全体の心地よさにもつながっていきます。

・素材や形状の工夫で、清潔感や安心感を演出

毎日手が触れる場所だからこそ、素材やかたちの選び方は洗面台の使い心地を大きく左右します。たとえば、タイルはひんやりとした清潔感を、木はやわらかなぬくもりを、石はほどよい重厚感をもたらしてくれます。ボウルやカウンターの形状も、空間の佇まいに影響する要素です。直線的なデザインは端正な印象を、曲線を取り入れればやわらかな安心感が生まれます。その上で、掃除のしやすさや耐久性といった実用面もしっかりと検討しておきたいところです。使用頻度の高い場所だからこそ、無理なく手入れできる工夫が大切になります。

・「どこに何をしまうか」を、あらかじめ検討する

タオルや洗剤のストック、身支度の道具など、洗面室は用途の異なるさまざまなものが集まりがちな場所です。必要なものが多い分、収納計画が曖昧だと、すぐに雑然とした印象になってしまいます。引き出しやボックスを活用し、収納量を設けることも有効ですが、もっと大切なのが、「どこに何をしまうのか」を具体的に決めておくこと。使う順番や動きに沿って、あらかじめものの配置を考えておけば、散らかりにくい状態を無理なく保てます。

洗面台にこだわったリノベーション事例

洗面を快適に整えるポイントを押さえたところで、ここからは実際のリノベーション事例を見ていきましょう。動線や配置、素材、収納の工夫を取り入れながら、洗面台をどのように暮らしの起点として整えているのか。きっと参考になるヒントやアイデアが見つかるはずです。

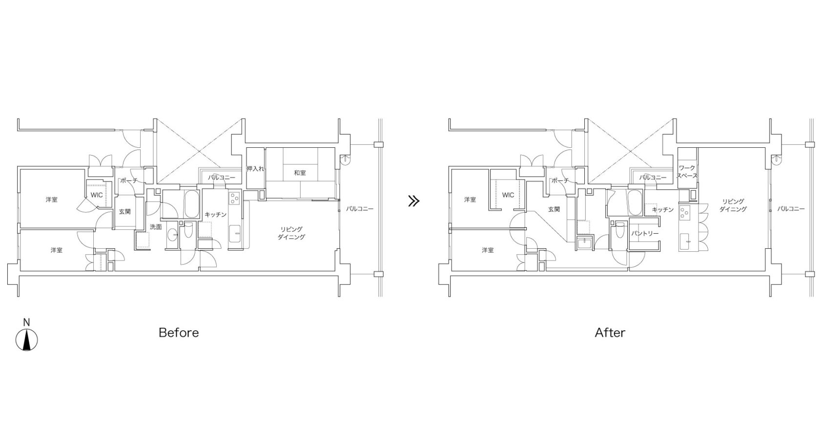
1: オープンな洗面台を、暮らしのハブに

Mさん夫妻は、14歳の長女、12歳の長男との4人家族。家族全員分の個室をつくり、「楽しく快適なシェアハウス」というコンセプトでリノベーションに取り組みました。そんな住まいのハブとして設けたのが、オープンな洗面台です。

朝起きると、まずはそれぞれが個室から出てきて、ここで身支度。「オープンになっていることで、いつも清潔にして気持ちのよい場所にしておきたいという意識になる」と奥様。洗面台の前の通路はひとつの部屋くらいの広さがあるため、植物を飾ったり、猫と遊んだり、住まいの「余白」にもなっていると言います。

ホテルライクなテイストを意識して、壁にはタイルを採用。鮮やかすぎないブルーの色味が、空間をシャープに引き締めています。また、洗面台の下には猫用のトイレを設置。出入口も設けたことで、猫のための空間にもなっているそうです。

間取り図(before→after)

——————

<リノベーションデータ>
所在地:東京都世田谷区
居住者構成:4人(夫妻+子ども2人)
専有面積:115.54㎡
間取り:4LDK
既存建物竣工年:1988年
リノベーション竣工年:2023年
お宅拝見記事:https://nokurashi.com/ownersvoice/17258

——————

2: 洗面台を脱衣所から独立させ、空間を機能的に活用

6歳の長女を育てる40代前半のKさんご夫婦は、築19年の中古マンションをフルリノベーション。コロナ禍でもあったことから、帰宅後すぐに手を洗えるよう、玄関からLDKに向かう動線上に、脱衣とは独立したオープンな洗面台を設けました。

「実際に暮らしはじめてみて、帰宅時のうがいや手洗いもスムーズです」とご主人。オープンエリアにしたことで、朝の支度で忙しい時間帯に家族3人で使っても窮屈感がなく、のびのびと使えていると言います。

間取り図(before→after)

洗面台を独立させたことで、脱衣室にもゆとりが生まれました。空いたスペースには、作業台にもなるカウンターや室内干し用のパイプハンガーを設置し、家事室のように活用しています。生活動線と家事効率がしっかりと意識された機能的な住まいです。

——————

<リノベーションデータ>
所在地:神奈川県横浜市
居住者構成:ご夫婦+子ども1人
専有面積:79.69㎡
間取り:2LDK
既存建物竣工年:2003年
リノベーション竣工年:2022年
お宅拝見記事:https://nokurashi.com/ownersvoice/12487

——————

3:「植物と暮らす住まい」ならではの配置

20代のうちに家を購入したいと考えていたNさんが新居に選んだのが、36㎡のリノベーション済みマンション。白い床や、有孔ボードの壁に囲まれたニュートラルな空間で、大好きな植物に囲まれた暮らしを楽しんでいます。

部屋の中心といってもいい位置に設置されたのが、オープンな洗面台です。おかげで「植物にも水やりがしやすい」とNさん。洗面を含むLDKの床は耐水性のある仕上げなので、水が漏れる心配もなし。「植欲を満たす、健やかな癒場所」というタイトルで企画された物件ならではの魅力を、十二分に引き出しています。

間取り図(after)

Nさんは洗面台をドレッサーとしても活用。朝、音楽をかけて、コーヒーを淹れながら、ここで身支度する時間が大好きだと言います。ちなみに、洗面台の真上を通る天井レールに設置された照明は、スマートライト。時間帯によって光の色合いを使い分けることで、心地よく1日を過ごされています。

——————

<リノベーションデータ>
所在地:東京都港区
居住者構成:シングル
専有面積:36.66㎡
間取り:1LDK
既存建物竣工年:1983年
リノベーション竣工年:2021年
お宅拝見記事:https://nokurashi.com/ownersvoice/12849

——————

4:曲線を活かすことで、安心感のある上質な空間を

同居して7年目になるTさんとOさんは、都心の便利な立地、広さと機能を重視した住まいを求め、67.7㎡の中古マンションを購入。自分たちの好みに振り切り、オリジナリティあふれる住まいを、フルリノベーションでかたちにしていきました。

なかでも特徴的なのが、オーダーメイドのように自由度の高いハーフユニットでつくったガラス貼りの浴室です。そこにつながる洗面室も、インテリアに溶け込むような上品で高級感のある雰囲気を目指していきました。

洗面ボウルは、Oさんがショールームで一目惚れしたという、曲線的なデザインが特徴のものを採用。衣装部屋へとつながるアーチの間口にも曲線を取り入れるなど、使用頻度の高い場所だからこそ、安心感やリラックス感のある空間へと仕上げていきました。

間取り図(before→after)

——————

<リノベーションデータ>
所在地:東京都新宿区
居住者構成:2人
専有面積:67.7㎡
間取り:1LDK
既存建物竣工年:1999年
リノベーション竣工年:2024年
お宅拝見記事:https://nokurashi.com/ownersvoice/22631

——————

5:朝をスムーズにする、寝室とのゆるやかな繋がり

100㎡超のヴィンテージマンションを購入し、広いLDKと回遊型の間取りへとリノベーションしたTさん。生活動線にあわせて、北側から寝室、ウォークインクローゼット、洗面・風呂・トイレなどの水回りと、必要な空間を配置していきました。

寝室と洗面室、メイクコーナーが東側の通路でつながっているため、行き来もスムーズに。「寝室で目覚め、顔を洗ってメイクをする」という朝のルーティーンが、滞りなく進められるようになっています。

間取り図(before→after)

——————

<リノベーションデータ>
所在地:東京都渋谷区
居住者構成:シングル+猫4匹
専有面積:117.06㎡
間取り:2LDK
既存建物竣工年:1984年
リノベーション竣工年:2017年
お宅拝見記事:https://nokurashi.com/ownersvoice/1733

——————

 

心地よさと使い勝手のよさを両立させるために

さまざまな事例を通じて、あなたが理想とする洗面台のあり方が見えてきたでしょうか?最後に、洗面台のリノベーションにあたって、注意しておきたいポイントを解説します。

①オープンにするなら、視線や生活感のコントロールを意識
洗面台をオープンにする場合は、住まいのどこからどのように見えるかにも目を向けてみましょう。洗面まわりは、日用品や水まわり特有の質感によって生活感が出やすい場所でもあります。空間になじませるためには、見せる部分と見せすぎない部分をゆるやかに整えることが大切です。開放感を保ちながら、必要以上に生活感が露出しないよう整えることで、安心感や居心地のよさが生まれます。

②収納量や清掃のしやすさも具体的に検討する
収納量や清掃のしやすさも、検討しておきたいポイントです。タオルやストック品をどれだけ収めるのか、どこに置くのかを整理しておかないと、使いはじめたから不便を感じることも少なくありません。水はねや汚れが出やすい場所でもあるため、カウンターや洗面台の素材・形状もしっかりと確認しておきましょう。日々の動作やメンテナンスの負担まであらかじめ想定しておくと、生活のなかの小さなストレスを軽減できます。

③家族構成やライフスタイルに合わせて計画する
洗面台の使い方は、家族の人数や生活リズムによって大きく異なります。朝の時間帯に何人が同時に使うのか。身支度のためのアイテムがどれくらい必要なのか。それによって必要な広さも収納量も変化します。小さな子どもがいる場合は高さや安全面への配慮も欠かせません。誰がどのように使うのかを具体的に思い描くことが、後悔のない住まいづくりにつながります。

日々の時間を、少しだけ整える

朝の身支度に、帰宅後の手洗い。洗面台の配置や動線を工夫することは、そうしたひとときの過ごし方を変えることにつながります。小さな変化でも、それが毎日の積み重ねとなることで、暮らし全体がいつしか心地よいものへと変わっていくのではないでしょうか。日々のリズムを、もうほんの少し整えたい。そんなときこそ、洗面台のリノベーションという選択肢に目を向けてみてはいかがでしょうか。

related SERVICE
関連のサービス
EVENT & NEWS
イベント&ニュース

ReBITA SERVICE
リビタのサービス

▲ 暮らしのリズムを整える、洗面台から考えるリノベーション事例5選|住まいのヒント