断熱と床暖房で叶える冬でもあたたかく快適なリノベーション事例5選|住まいのヒント

Housing Tips
暮らし再発見マガジン のくらし by ReBITA
住まいのヒント

断熱と床暖房で叶える
冬でもあたたかく快適なリノベーション事例5選

目 次
  1. 1あたたかな住まいをつくる5つのポイント
  2. 2冬でもあたたかな住まいを実現したリノベーション事例
  3. 3寒さに強い住まいを実現するために
  4. 4寒い冬でも、心も身体もほっとできる住まいを

冬の冷えを解消することで、日々の暮らしの質はぐっと高まります。どんなに忙しい日でも、帰宅した瞬間にあたたかさを感じられる住まいは、気持ちまでほぐしてくれるもの。この記事では、冬でも心地よく過ごせる住まいを実現するための知恵や工夫を、実際のリノベーション事例も交えながら紹介していきます。

あたたかな住まいをつくる5つのポイント

寒さを感じる住まいには、必ずどこかに原因があります。窓や壁から熱が逃げてしまうこともあれば、素材や仕上げ、暖房の使い方によって体感温度が大きく変わることも。日々の寒さをやわらげ、住まいをよりあたたかく整えるには、建物のつくりや暮らし方に合わせて、どこをどう見直すかが大切です。ここでは、冬でも心地よく過ごせる住まいをつくるために押さえておきたいポイントを、5つの視点から解説していきます。

・寒さの原因を見極め、効果の大きい箇所から改善

住まいの寒さを解消するには、「どこから熱が逃げているのか」を把握することが大切です。窓や外壁、天井、床などは外気の影響を受けやすく、わずかな隙間からも冷気が入り込んでしまいます。こうした「弱点」を見極め、熱の出入りが大きい部分から優先的に手を加えると、限られた予算でも大きな効果が得られるはずです。たとえば、窓に内窓を設けたり、気密テープで隙間風を防ぐだけでも、住まい全体の断熱性はぐっと高まります。改善すべきポイントを見極め、適切な対策を講じることが、あたたかな住まいをつくる近道です。

・断熱材を活用して、外気に左右されない室内環境を

冬でもあたたかい住まいをつくるために、上手に活用したいのが断熱材です。断熱材とは、その名の通り熱が伝わるのを防ぐための資材のこと。これを壁や天井、床などの内部に設置し、「熱が伝わりにくい層」をつくることで、外気に左右されにくい安定した室内環境を実現できます。一方で、施工時に断熱材に隙間があると湿気がこもりやすくなり、内部結露の原因になることも。また、断熱材の厚みによって居住スペースを圧迫してしまうこともあるため、住まい全体のバランスを考慮しながら取り入れることがポイントです。

・自然素材を取り入れれば、温度以上の温もりが

自然素材を取り入れれば、冬の室内はもっと心地よくなります。なかでもおすすめしたいのが、調湿機能に優れた漆喰や珪藻土です。壁材として用いれば、乾燥しがちな冬の空気をしっとりと保ってくれます。湿度が維持できれば体感温度も下がりにくくなるため、室内のひんやり感も軽減されるというわけです。また、無垢材も積極的に取り入れたい素材のひとつ。木材は熱伝導率が低いため、手や足でふれたときにも体温が奪われにくく、やわらかな温もりが感じられます。こうした自然素材を活かすことで、温度以上のあたたかさを実感できるはずです。

・床暖房を活用し、足元から体感温度を高める

冬の快適さを大きく左右するのが、足元のあたたかさです。人は下半身が冷えると、寒さを感じやすいもの。そこで効果的なのが床暖房です。床面からじんわりと熱が伝わるため、部屋全体が自然にあたたまり、エアコンだけでは補いきれない“足元のひんやり感”を和らげてくれます。エアコンに比べて空気が乾燥しづらく、肌や喉への負担が少ないのも嬉しいところ。リビングやダイニングなど長く過ごす場所に取り入れれば、寒い季節でも落ち着いて過ごせる心地よい空間づくりにつながります。

・気密性を高めることが、暖房効率の最大化に

エアコンや床暖房でどんなに部屋をあたためても、住まいの気密性が低いと、思うように室温が上がりません。特に外気が入り込みやすいのが、窓まわりやドアの開口部。わずかな隙間でも暖気が逃げてしまい、足元の寒さや暖房の効きムラにつながってしまいます。いくら暖房をかけても、なかなか部屋があたたまらないと感じたときは、まずはこうした「隙間になりやすい場所」をチェックするのがおすすめです。建具のゆがみやパッキンの劣化が、気密性を低下させていることも少なくありません。気密性がしっかりと確保されていれば、同じ暖房でもより快適に過ごせるはずです。

冬でもあたたかな住まいを実現したリノベーション事例

冬でもあたたかい住まいをつくるためのポイントを押さえたところで、次は実際のリノベーション事例をみていきましょう。断熱材や自然素材、床暖房などをどのように取り入れているのか、ぜひ参考にしてみてください。

1:キッチンもリビングも、足元からあたたかに

ご夫婦と4歳の娘さんで暮らすFさんご家族は、約66㎡の中古マンションをリノベーション。L型キッチンを中心に、水回りからリビングダイニングへと回遊できる動線が特徴で、4歳の娘さんや遊びに来た子どもたちも元気に走りまわっているのだとか。

リノベーションにあたって、「一番こだわったポイント」のひとつとして挙げるのがフローリング。床暖房に対応した店舗用の幅広のフローリングは、素足で触れても心地よく、傷がついても気にならないラフな質感が気に入っているそうです。

床暖房はリビングだけではなく、シンク前のタイルにも設置。冬でもあたたかなので、料理が好きな奥さまも食器洗いのストレスがなくなったと言います。足元からじんわりと家族みんなをあたためる住まいです。

間取り図(before→after)

——————

<リノベーションデータ>
所在地:東京都大田区
居住者構成:夫婦+子ども1人
専有面積:66.46㎡
間取り:1LDK
既存建物竣工年:1984年
リノベーション竣工年:2016年
お宅拝見記事:https://nokurashi.com/ownersvoice/1008

——————

2:長期優良住宅レベルの断熱性と気密性を実現

7歳の長男を育てるAさんご夫妻。子育てを優先して、奥さまの勤務先の近くで住まいを探すなかで、戸建てリノベーション物件の購入を選択されました。購入時はスケルトン状態だったものの、断熱性・気密性・耐震性など住宅性能の面が、長期優良住宅の認定を受けられるレベルで計画されていたことが安心感につながったと言います。

空間がオープンなことから寒さを心配していたそうですが、「想像していたほど寒くはなかった」という奥さま。真冬の朝こそガスファンヒーターを使うこともあるものの、日中はエアコン1台でまかなえているそうです。

以前に暮らしていた鉄骨造のマンションと比べても、あたたかさを感じることが多いというこの住まい。窓の結露などもなく、家族3人で快適に暮らされています。あらかじめ断熱性・気密性を高めておくことの大切さを教えてくれる事例です。

間取り図(before→after)

——————

<リノベーションデータ>
所在地:東京都国立市
居住者構成:ご夫婦+子ども1人
間取り:2LDK
既存建物竣工年:1991年
リノベーション竣工年:2022年
お宅拝見記事:https://nokurashi.com/ownersvoice/14439

——————

3:窓まわりの断熱を徹底することで、冬でも快適に

リノベーション済みマンションを購入した30代のMさん。エネルギーや水を扱う環境サービスを提供する会社で、サステナビリティ推進の担当をされていることもあり、住宅性能に対する優先度は高かったと言います。

そんなMさんが、この住まいを選んだポイントのひとつが、室内側のすべての窓にインナーサッシが新設されていたこと。さらに建物全体の大規模修繕で、屋外側のサッシもペアガラスに交換されていたことから「窓の断熱性能は十分に期待できる」と判断されました。

こうした工夫によって家の中の温度差が少なく、1年を通じて快適に過ごせる住まいが実現。寝室にしている玄関側の個室にはエアコンがありませんが、それでも冬の寒さに悩まされることはないといいます。ちなみに夏はさすがに暑さを感じるため、ベッドをLDKに移動させているのだとか。広々としたLDKを活用し、快適に過ごせる場所を探して「遊牧民のように季節ごとに寝る場所を変えられる」という自由さも、Mさんは魅力を感じているそうです。

間取り図(after)

——————

<リノベーションデータ>
所在地:東京都江東区
居住者構成:1人
専有面積:54.60㎡
間取り:1LDK
既存建物竣工年:1981年
リノベーション竣工年:2023年
お宅拝見記事:https://nokurashi.com/ownersvoice/18675

——————

4:珪藻土と断熱塗料をDIYで仕上げた、こだわりの住まい

ご夫婦と1歳のお子さまで暮らすKさんご家族は、子育ての場所として腰を落ち着けられる住まいを探すなかで、築34年の中古リノベーション物件を選びました。普段からDIYをたしなむご夫妻は、壁や天井の塗装も自分自身で仕上げていったと言います。

個室は断熱塗料で塗装。LDKと土間は、ご夫婦ふたりで3週間かけて珪藻土で仕上げていきました。もちろん大変さもありましたが、自分たちで手をかけた分だけ、愛着もひとしお。壁が傷ついても「塗り直せばいいや」と思えるから、神経質にならずにおおらかに暮らせているのだとか。

もともとはテクスチャーが気に入って選んだ珪藻土でしたが、結果的にその調湿機能が冬でも快適な室内環境の実現に一役買っています。子育てをする空間だからこそ、なるべく良い環境を整えたい。そんなご夫婦の思いが、かたちになった住まいです。

間取り図(before→after)

——————

<リノベーションデータ>
所在地:東京都世田谷区
居住者構成:夫婦+子ども1人
専有面積:65.24㎡
間取り:1LDK
既存建物竣工年:1979年
リノベーション竣工年:2013年
お宅拝見記事:https://nokurashi.com/ownersvoice/3730

——————

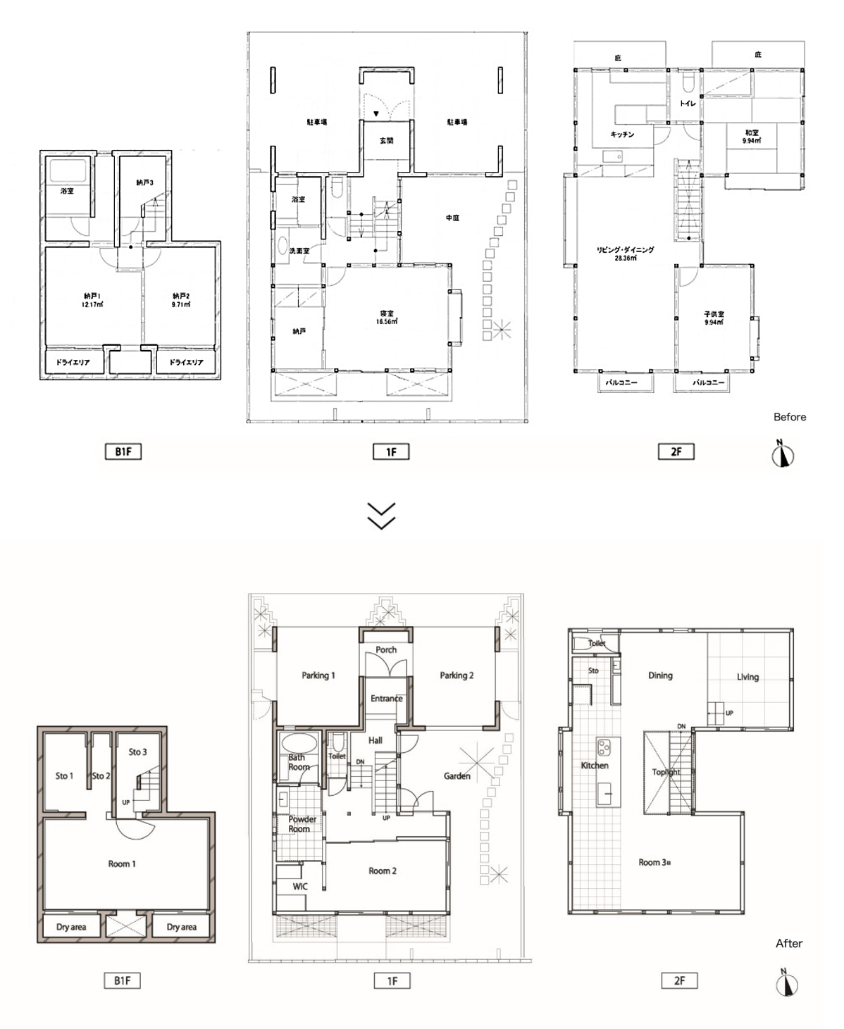
5:断熱性や気密性は最初に高めておくことが大切

Nさんご夫妻は、4歳の男の子と1歳の女の子と暮らす4人家族。長女の誕生をきっかけに、手狭に感じていた賃貸からの住み替えを決め、戸建ての中古リノベーション物件にめぐりあいました。

リノベーションにあたっては、見た目より住みやすさを重視。壁や天井には断熱材を入れ、ほとんどの窓もペアガラスに交換しました。これは以前に冬の冷え込みが厳しい住まいで暮らした経験から、断熱性能を高めることの大切さを知っていたからだと言います。

リノベーションを終えてみて感じるのは、表面的な意匠の部分はあとからでも変更できるものの、断熱材など住まいの性能に関わる部分は、最初からしっかりと手を入れておいた方がいいということ。計画的なリノベーションによって、家族みんながほっとできる住まいをかたちにしています。

間取り図(before→after)

——————

<リノベーションデータ>
所在地:神奈川県川崎市
居住者構成:夫婦+子ども2人
専有面積:119.24㎡
間取り:4LDK
既存建物竣工年:1996年
リノベーション竣工年:2016年
お宅拝見記事:https://nokurashi.com/ownersvoice/2385

——————

寒さに強い住まいを実現するために

さまざまな工夫や事例を通じて、冬でも心地よく過ごせる住まいのイメージがつかめてきたでしょうか。最後に、あたたかな住まいを実現するうえで見落としがちな、3つのポイントを整理していきます。

①断熱や床暖房は、設計段階から計画的に
断熱や床暖房は、あとから部分的に追加するよりも、設計段階で住まい全体のつくりと合わせて計画した方が効果を発揮しやすくなります。どの部屋をどれだけあたたかくしたいのか、どんな暮らし方をしているのかによって、最適な方法は変わってくるもの。間取りや仕上げ材との兼ね合いもふまえて、早めに検討しておくことが大切です。

②断熱・気密・暖房は、組み合わせてこそ力を発揮する
冬の快適性を高めるには、断熱性や暖房性能だけではなく、気密性も含めて総合的に整えることが重要です。どれかひとつが突出していても、他の要素に弱点があるとあたたまり方にムラが出てしまうことも。住まいのつくりに合わせて、断熱・暖房・気密をバランスよく組み合わせることで、光熱費を抑えながらも心地よさを感じられる住まいになります。

③冬だけでなく、1年を通じた快適性を意識する
冬の寒さだけに目を向けてしまうと、断熱や気密のバランスを誤り、夏に熱がこもりやすくなってしまうことも。大切なのは、季節ごとの快適性ではなく、1年を通じて無理なく過ごせるかどうかを基準に考えることです。風の流れや日当たりなど、自然条件もしっかりふまえて設計しておけば、冷暖房に過度に頼りすぎることなく、快適に過ごせる住まいが実現します。

寒い冬でも、心も身体もほっとできる住まいを

断熱性や気密性を高めたり、床暖房や自然素材を上手に活用すれば、冬の寒さはぐっとやわらぎます。リノベーションなら住まいの弱点に合わせて、より快適な「あたたかさ」をつくることが可能です。そしてこうした寒さ対策は、実は1年を通じた心地よさにもつながってきます。どこから手をつけるべきか迷ったときは、まずは気軽にプロへ相談してみてください。本記事で触れた視点をヒントに、より心地よい住まいをかたちにして冬を快適に過ごしましょう。

related SERVICE
関連のサービス
EVENT & NEWS
イベント&ニュース

ReBITA SERVICE
リビタのサービス

▲ 断熱と床暖房で叶える冬でもあたたかく快適なリノベーション事例5選|住まいのヒント